⚡ Descuentos en cursos en video - Lleva tu aprendizaje técnico al siguiente nivel y aprovecha precios especiales antes de que termine la oferta. 🔥 Aprovechar oferta ahora 🔥
Televisores de Tubo

tv samsung CL-25M6MQ

jose peres juares
hace 13 años
hace 13 años
hola compañeros tengo una tv samsung que cuando la conecto a la corriente me da voltajes pero al instante se van cayendo hasta llegar a cero voltios.ya cambie el regulador y cheque resistencias y filtros pero no doy con la falla si alguien me puede hechar la mano se lo agradesco mucho.
warneri92
warneri92
66.404
hace 13 años
hace 13 años
enesta marca falla el transistor de salida horizontal casi inminente el cambio, la resistencia interna se cae de valor o el diodo damper no funciona
jose peres juares
hace 13 años
hace 13 años
gracias por tu aporte compañero pero e desconectado el b+ del flay y no tengo voltajes solo al conectar y despues se caen los voltajes si tienes algun otro comentario te lo agradesco
warneri92
warneri92
66.404
hace 13 años
hace 13 años
correcto, este mismo modelo se caracteriza por encontrarse filtros secos o con fuga especificamente en el primario y secundario del transformador, así como los de mayor voltaje junto al fly back, pero concretamente eso no es todo, diodos en fuga o integrados en mal estao como reguladores de voltaje y... a veces los optoacopladores que no funcionan respecto a que se te apaga: sabes que el filtro electrolítico no es para subir voltaje sino para evitar que éste se caiga a cero? por eso te hago incapié en lo de los filtros. suerte amigo
jose peres juares
hace 13 años
hace 13 años
gracias compañero por tu interes en ayudarme,voy a revisar todos los filtros de la fuente y diodos y luego comento
jose peres juares
hace 13 años
hace 13 años
hola compañeros disculpen la tardanza para contestar,ya cheque todos los filtros de la fuente,los diodos,optoacoplador,resistencias y cambie el regulador de la fuente y sigue sin encende solo tengo un voltaje de 170v en una pata del regulador y otro de 14.5 en otra pata del regulador y esos son todos los voltajes q tengo,si alguien sabe que puedo checar mas se lo agradecere mucho.
jose peres juares
hace 13 años
hace 13 años
hola compañeros antes que nada un saludo a todos,les comento que ya enciende la television pero tengo otro problema con el vertical de esta tv estaba dañada la resistencia de 1omhs que alimenta el vertical, se la cambie pero se calienta mucho y desconecte la corriente del circuito vertical y la resistencia ya no se calienta,cambie el circuito vertical pensando que estaba en corto pero sigue el mismo problema ya cheque todos los diodos,las resistencia y los filtros y no encuentro la falla si alguie me puede hechar una mano se lo agradecere
warneri92
warneri92
66.404
hace 13 años
hace 13 años
el diodo de retroalimentacion? oK? si es asi comienza a pensar en el yugo
carlos adrian angulo rodr
hace 13 años
hace 13 años
revisa los condensadores q paresen resistencia debes de tener uno en corto se ubica no me acuerdo muy vien pero esta serca de la jungla y si no esta ningun condesador dañado resolda la tarjeta esta falla tanvien es probocada por soldaduras frias comenta
jose peres juares
hace 13 años
hace 13 años
el yugo ya lo cambie y siguio la falla,voy a checar el diodo y te comento como me fue gracias por tu aporte compañero.
jose peres juares
hace 13 años
hace 13 años
gracias compañero carlos voy a checar los capacitores y te comento como me fue
jose peres juares
hace 13 años
hace 13 años
hola compañeros ya cheque el diodo de retroalimentacion y todos los capacitores,estoy atorado en dos resistencias (R303 Y R301) que van a tierra una de 1.5 y otra de 1.2 omhs si las desconecto ya no se calienta la resistencia de 1omhs que alimenta al vertical si alguien tiene el diagrama y me puede orientar o sabe como resolver la falla le estare muy agradecido.
warneri92
warneri92
66.404
hace 13 años
hace 13 años
http://www.yoreparo.com/foros/download.php?id=67815
warneri92
warneri92
66.404
hace 13 años
hace 13 años
yo creo que revisa los 3 diodos [URL=http://img154.imagevenue.com/img.php?image=472362990_zenners_122_108lo.JPG][/URL]
jose peres juares
hace 13 años
hace 13 años
gracias compañero por tu interes en ayudarme,el diagrama me aparece como dañado.y ya cheque esos diodos y me marcan buenos o los tengo que cambiar
jose peres juares
hace 13 años
hace 13 años
hola compañeros ya cheque los diodos,los capacitores y estan bien ya no se que mas checar.si desconecto la r303 y r304 ya no se calienta la resistencia de 1ohms pero no abre la pantalla.algun otro comentario para poder resolver la falla.
Joansoler
Joansoler
47.894
hace 13 años
hace 13 años
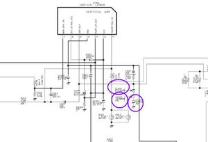
Reemplazar el diodo doblador de tensión D303 que se encuentra conectado entre los pines 2 y 6 del IC Vertical éste diodo a pesar de medir bien en forma aparente en una prueba estática suele presentar problemas en una prueba dinámica o de funcionamiento. También verificar que este fusistor o resistor de seguridad de 1Ω 1W no se encuentre desvalorizado... Saludos!! Joansoler.
jose peres juares
hace 13 años
hace 13 años
gracias compañero juan soler voy a cambiar el diodo y te comento como me fue
jose peres juares
hace 13 años
hace 13 años
buenas noches compañeros les comento que ya cambie el diodo D303 y sigue elproblema,cambie el circuito vertical pensando que tal vez estuviera dañado pero elproblema sigue algun otro comentario que tengan.
Joansoler
Joansoler
47.894
hace 13 años
hace 13 años
Al desconectar los resistores R303: 1,2Ω 2W y R304: 1,5Ω 2W se consigue abrir el circuito que conecta la salida del amplificador vertical con la sección vertical del yugo y el trayecto de la señal que circula por ella hacia tierra (masa), por esta razón ya no calienta el fusistor de 1Ω 1W...En condiciones normales de funcionamiento la seeción vertical del yugo no debería presentar tensión continua (D.C o C.C), verificar si esto condición se cumple asimismo verificar que no se encuentre con "fuga" y/o "corto" alguno de los diodos zener: DZ302, DZ303, DZ306 conectados entre el pin 5: VERT OUT y tierra, hacer lo mismo con el capacitor C306: 104/100V (MP) **************************** 104: 100nF: 0,1uF ****************************
jose peres juares
hace 13 años
hace 13 años
hola compañero si presenta tencion,en la entrada del yugo le llegan 18v y en la salida tambien tiene 18v,voy a checar lo que me indicas a ver que pasa.te mando un abrazo y un saludo y gracias por tu interes en ayudarme.
jose peres juares
hace 13 años
hace 13 años
hola compañero te comento que ya cheque el capacitor 104 y los diodos zener pero todo esta bien y cheque los voltajes el el yugo de un lado hay 12.5v y en el otro hay 1.5v no se si eso es correcto.
jose peres juares
hace 13 años
hace 13 años
gracias companeros por su apoyo ya pude reparar la tv,cambie el diodo D303 y el circuito vertical.un saludo a todos desde veracruz.
Joansoler
Joansoler
47.894
hace 13 años
hace 13 años
[quote="joansoler"]...Reemplazar el diodo doblador de tensión D303 que se encuentra conectado entre los pines 2 y 6 del IC Vertical éste diodo a pesar de medir bien en forma aparente en una prueba estática suele presentar problemas en una prueba dinámica o de funcionamiento....[/quote] Me satisface saber que finalmente pudiste culminar con éxito esta reparación, ahora para cerrar este tema pasarlo a Solución. Saludos!! Joansoler.
Reparaciones similares solucionadas

¿Conoces una solución?

¡Aprende a reparar con estos cursos YoReparo!

¿Tienes una mejor respuesta a este tema? ¿Quieres hacerle una pregunta a nuestra comunidad y sus expertos?
Regístrate gratis